Improvement Project Progressing

As you may have seen from The Link and the Lorton Parish Magazine, following a number of meetings with representatives from the National Lottery Heritage Fund (NLHF) team and after receiving advice from an independent funding strategist, it became clear that it could take us up to five years to secure significant funding from the NLHF. There was also a risk that we could go through all the motions and then they wouldn’t necessarily approve the funding we needed. Bearing this in mind, we decided to look at a different approach.

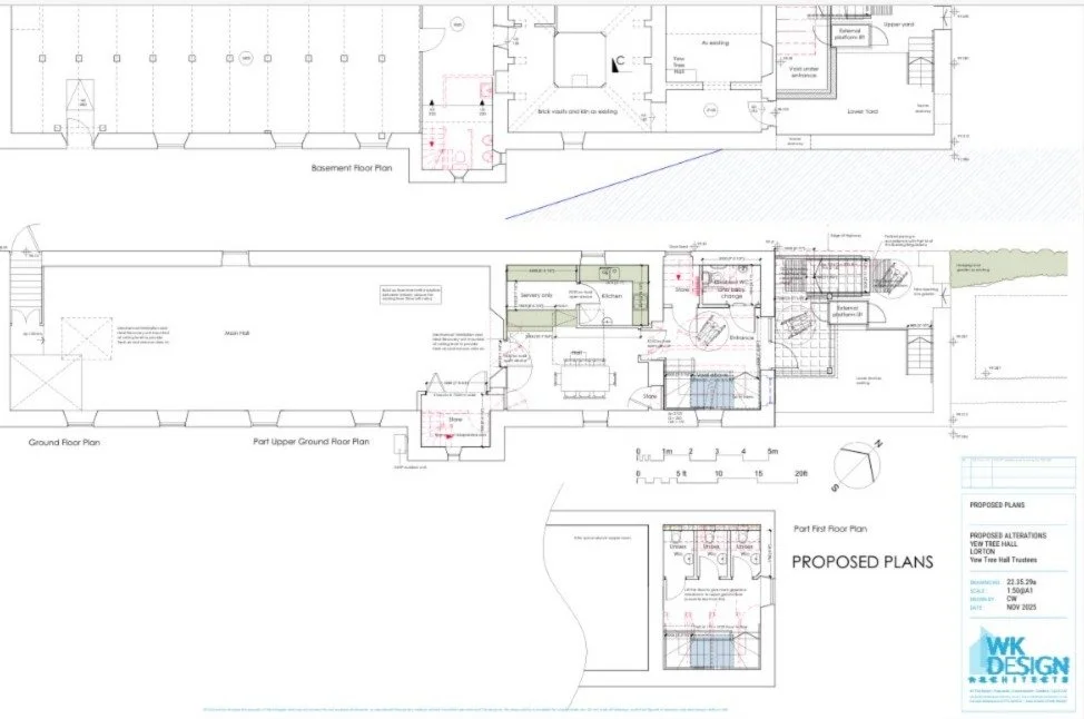
By using a number of smaller grant funders and donations from the community we’re confident we can progress the project much quicker. This means that the project will need to be undertaken in a few phases with the first phase to include the high priority work such as access into the building for everyone in our community. Due to the availability of funding in the short term, a simpler and more cost-effective external access option, as an alternative to the single storey extension, will be needed.

WK Design Architects have altered the drawings to design this option and will be submitted in January for planning permission and Listed Building Consent. The overall objectives of the project will still be met by the alternative scheme, which is based loosely on option A from the original community consultation back in May 2025 (and which actually came a close second to option B, the single story extension). We think that by moving the project along like this, it’ll be far more achievable financially and will mean that a start can be made on the initial building work, possibly even later this year, but we shall see.

Continued donations from the community are really important as the availability of funding through grants is somewhat finite and we’d like to improve the hall as comprehensively as possible. You can see the draft plans below.

We’ll keep everyone up to date with progress and if you have any questions in the meantime, please ask one of the trustees or Cathy Lee who leads the Development Group. Alternatively, email Adam Baker at ythlorton@gmail.com.

Previous
Previous

Our Planning Application is Now Live!

Next
Next

The Yew Tree Hall Grand Auction